Victoria Precision Products, Inc.
On-Site Waste Water Treatment Experts
Low Pressure Systems
The Low Pressure Dosing (LPD) System works well in soils in which conventional, gravity-flow systems have failed. Such soils are typically tight clay soils in which there is no evidence of a seasonal high-water table (as evidenced by mottling or discoloration of the soil).
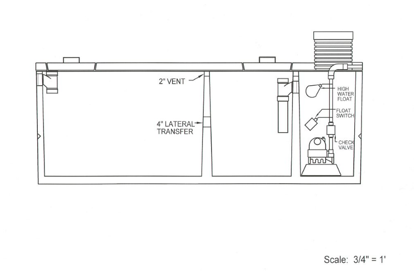
The sewage is treated in the same manner as in a conventional dual-compartment septic tank. Once the partially treated sewage leaves the second compartment of the tank, it gravity flows into the pump chamber from which it is pumped into a drainfield consisting of small-diameter, perforated pipes. These perforated pipes are placed in a narrow trench on a bed of gravel at a depth of from 18-36 inches and covered with a geotextile fabric. The trench is backfilled with Class II soil. The effluent is forced into the surrounding soil where the wastewater treatment process is completed. Proper design and installation is important in order to avoid the possibility of the contamination of ground water.
LPD system drainfields are sized according to gallons per day of anticipated water usage; therefore, use beyond these limits results in ponding of effluent on the surface of the drainfield. The careful monitoring of water conservation measures is extremely important to the proper functioning of LPD drainfields.
